Ten artykuł to kompleksowy przewodnik, który krok po kroku wprowadzi Cię w świat rysunków technicznych konstrukcji stalowych. Poznasz podstawowe zasady, symbole i metodykę pracy z dokumentacją, która jest fundamentem w budownictwie stalowym. Dzięki niemu zdobędziesz solidne podstawy, które pozwolą Ci samodzielnie interpretować projekty i uniknąć kosztownych błędów, stając się "od zera do bohatera" w tej kluczowej dziedzinie.
Kluczowe informacje dotyczące czytania rysunków technicznych konstrukcji stalowych
- Rysunek techniczny to uniwersalny język inżynierów i wykonawców, kluczowy dla precyzyjnej realizacji projektów.
- Dokumentacja jest regulowana przez Polskie Normy (PN) i normy europejskie (EN), standaryzujące formaty, linie i wymiarowanie.
- Tabelka tytułowa, rzuty, widoki, przekroje oraz legendy to podstawowe elementy każdego arkusza rysunkowego.
- Różne typy linii (ciągła gruba, cienka, kreskowa) mają ściśle określone znaczenie.
- Wyróżnia się rysunki zestawieniowe (montażowe) i wykonawcze (warsztatowe), każdy z nich ma inną funkcję.
- Zrozumienie symboli spoin, profili stalowych, gatunków stali, śrub i tolerancji jest niezbędne do poprawnej interpretacji.

Dlaczego umiejętność czytania rysunku technicznego to fundament w branży stalowej?
W budownictwie stalowym rysunek techniczny jest absolutnym fundamentem. To nie tylko zbiór linii i symboli; to uniwersalny język, który pozwala na precyzyjne przekazanie skomplikowanych informacji technicznych od projektanta do wykonawcy. Bez solidnej umiejętności jego odczytywania, niemożliwe jest zapewnienie dokładności i bezpieczeństwa na każdym etapie budowy. Jest to kluczowa kompetencja dla każdego, kto chce odnieść sukces w tej dynamicznej branży, od inżynierów projektujących konstrukcje, po monterów składających je na placu budowy.
Rysunek techniczny jako uniwersalny język inżynierów i wykonawców
Rysunek techniczny stanowi uniwersalny język inżynierów i wykonawców. Jego siła tkwi w precyzji i jednoznaczności, co pozwala na przekazywanie informacji technicznych niezależnie od barier językowych czy kulturowych. Zapewnia to spójność i dokładność na każdym etapie projektu, od koncepcji po finalne wykonanie. Dokumentacja techniczna w budownictwie stalowym jest ściśle regulowana przez szereg Polskich Norm (PN) oraz norm europejskich (EN). Normy te, takie jak PN-EN ISO 5457 określająca formaty arkuszy czy PN-EN ISO 128-2 definiująca rodzaje linii, zapewniają jednolity standard i zrozumiałość rysunków w całym kraju i Europie.
Konsekwencje błędnej interpretacji projektu: od strat finansowych po katastrofę budowlaną
Błędna interpretacja rysunku technicznego może mieć katastrofalne skutki. Najczęściej prowadzi do kosztownych błędów wykonawczych, które wymagają poprawek, generują opóźnienia w harmonogramie i znacząco zwiększają koszty projektu. W skrajnych przypadkach, niedokładne wykonanie elementów konstrukcyjnych może zagrażać stabilności całej budowli, prowadząc do poważnych wypadków, a nawet katastrofy budowlanej. Dlatego tak ważne jest, aby każdy detal rysunku był rozumiany poprawnie.

Anatomia arkusza rysunkowego: co musisz sprawdzić, zanim zaczniesz analizę?
Zanim zagłębisz się w szczegóły konstrukcji, kluczowe jest zapoznanie się z ogólnymi informacjami zawartymi na arkuszu rysunkowym. Te metadane stanowią kontekst dla całego projektu i pomagają zrozumieć jego podstawowe parametry. Ignorowanie tych elementów może prowadzić do fundamentalnych błędów w interpretacji.
Tabelka tytułowa: Twoje centrum dowodzenia projektem
Tabelka tytułowa, zazwyczaj umieszczona w prawym dolnym rogu arkusza, to prawdziwe centrum dowodzenia projektem. Powinna zawierać szereg kluczowych informacji. Znajdziesz tam nazwę obiektu, numer identyfikacyjny rysunku, skalę, dane osobowe lub firmowe projektanta, datę sporządzenia dokumentu, a także informacje o wszelkich rewizjach i zmianach. Każdy z tych elementów jest istotny numer rysunku pozwala na jego jednoznaczną identyfikację, skala informuje o proporcjach, a dane projektanta pozwalają na weryfikację źródła informacji.
Skala, format arkusza i historia rewizji jak interpretować kluczowe metadane?
Skala rysunku jest fundamentalna dla poprawnego odczytania wymiarów. Informuje nas, ile razy rzeczywisty obiekt został pomniejszony lub powiększony na papierze. Standardowe formaty arkuszy, takie jak A0, A1, A2, zdefiniowane w normie PN-EN ISO 5457, zapewniają czytelność i ułatwiają przechowywanie dokumentacji. Historia rewizji jest niezwykle ważna zawsze należy pracować na najnowszej wersji dokumentacji. Używanie nieaktualnego rysunku może prowadzić do wykonania elementów niezgodnych z aktualnym projektem, co skutkuje koniecznością kosztownych przeróbek.
Legenda i wykaz materiałów (BOM): słownik symboli i lista zakupów w jednym
Legenda działa jak słownik dla rysunku technicznego. Zawiera wyjaśnienia wszystkich niestandardowych symboli, skrótów i oznaczeń użytych na rysunku, co jest niezbędne do poprawnej interpretacji detali. Z kolei wykaz materiałów, znany jako Bill of Materials (BOM), to szczegółowa lista wszystkich komponentów potrzebnych do wykonania konstrukcji. Jest to nieocenione narzędzie w procesie planowania zakupów, zarządzania zapasami i kontroli kosztów produkcji.

Nie każdy rysunek jest taki sam: poznaj kluczowe rodzaje dokumentacji
W świecie konstrukcji stalowych spotkasz różne rodzaje rysunków technicznych, każdy z nich pełni specyficzne funkcje i dostarcza innych informacji. Zrozumienie tych różnic jest kluczowe dla efektywnego posługiwania się dokumentacją projektową. Od ogólnego przeglądu po szczegółowe instrukcje każdy typ rysunku ma swoje miejsce w procesie budowlanym.
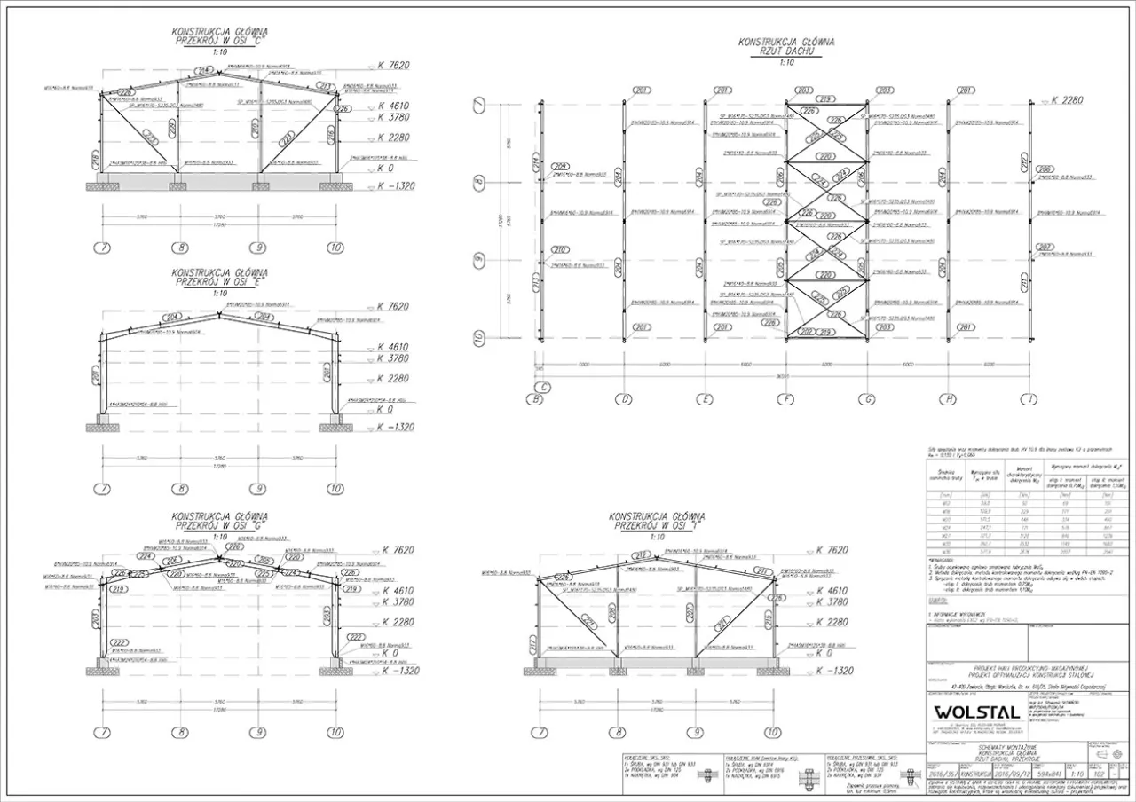
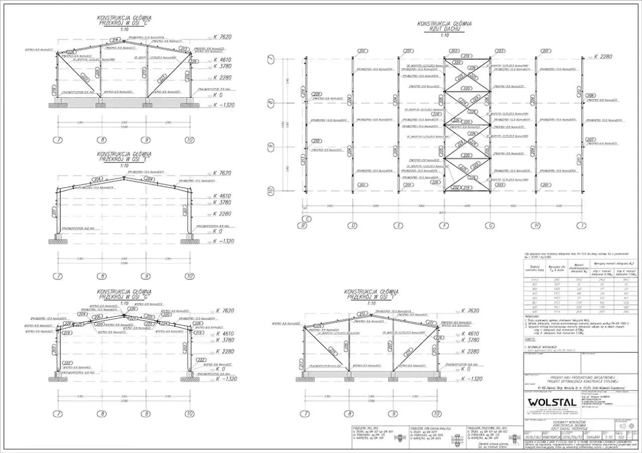
Rysunek zestawieniowy (montażowy): jak zobaczyć cały obraz konstrukcji?
Rysunek zestawieniowy, nazywany również rysunkiem przeglądowym lub montażowym, przedstawia ogólny układ całej konstrukcji stalowej. Jego głównym celem jest pokazanie, jak poszczególne elementy są rozmieszczone względem siebie oraz w jaki sposób łączą się na placu budowy. Pozwala to na zrozumienie całości projektu, jego gabarytów i wzajemnych relacji między głównymi częściami konstrukcji.Rysunek wykonawczy (warsztatowy): szczegółowa instrukcja dla producenta
Rysunek wykonawczy, znany także jako rysunek warsztatowy, to szczegółowa instrukcja przeznaczona dla wytwórni konstrukcji stalowych. Zawiera on wszystkie niezbędne informacje do precyzyjnego wykonania pojedynczego elementu. Znajdziemy tam dokładne wymiary, dane dotyczące obróbki, spawania, wykonania otworów, oznaczenia spoin zgodnie z normą PN-EN ISO 2553, a także informacje o wymaganych zabezpieczeniach antykorozyjnych. Według danych Chodor-Projekt, rysunki wykonawcze stanowią szczegółową instrukcję dla wytwórni konstrukcji stalowych.
Rysunek złożeniowy i detal: kiedy diabeł tkwi w szczegółach?
Rysunki złożeniowe prezentują sposób montażu kilku mniejszych elementów w większy podzespół. Pozwalają one zrozumieć, jak poszczególne części współpracują ze sobą na etapie produkcji lub montażu pośredniego. Z kolei rysunki detali to powiększone fragmenty rysunku głównego, które ukazują skomplikowane lub drobne elementy, które mogłyby być niewidoczne lub nieczytelne przy ogólnej skali rysunku. Pozwalają one na dokładną analizę kluczowych, często krytycznych dla funkcji, szczegółów.
Klucz do zrozumienia geometrii: rzuty, przekroje i widoki
Aby w pełni zrozumieć geometrię obiektu przedstawionego na rysunku technicznym, niezbędne jest opanowanie zasad rzutowania i przedstawiania obiektów trójwymiarowych w płaskiej przestrzeni dwuwymiarowego rysunku. Rzuty, przekroje i widoki pomocnicze pozwalają na kompleksowe zobrazowanie kształtu i budowy elementów konstrukcyjnych.
Metoda rzutowania europejskiego (E): jak poprawnie interpretować położenie widoków?
W Polsce i większości krajów europejskich stosuje się metodę rzutowania europejskiego (metoda E). Kluczowe jest zrozumienie, jak widoki są rozmieszczone względem siebie. Widok główny (zazwyczaj z przodu) znajduje się na środku. Widok z góry umieszcza się bezpośrednio pod widokiem głównym, a widok z lewej strony po prawej stronie widoku głównego. Prawidłowa interpretacja tej konwencji jest absolutnie kluczowa dla poprawnego odczytania przestrzennej formy obiektu.
Przekroje i kłady: jak zajrzeć do wnętrza elementu i zrozumieć jego budowę?
Przekroje to potężne narzędzie pozwalające "zajrzeć" do wnętrza elementu. Przedstawiają one obiekt tak, jakby został przecięty płaszczyzną tnącą. Dzięki temu możemy zobaczyć jego wewnętrzną budowę, grubość ścianek, układ otworów czy detale połączeń, które są niewidoczne na standardowych rzutach. Kłady natomiast służą do przedstawienia brył, których ściany nie są równoległe do płaszczyzny rzutowania.
Widoki pomocnicze i detale: kiedy standardowe rzuty to za mało?
Czasami standardowe rzuty prostokątne nie wystarczają do pełnego przedstawienia geometrii obiektu, zwłaszcza gdy występują powierzchnie skośne. W takich sytuacjach stosuje się widoki pomocnicze, które rzutują obiekt na dodatkowe płaszczyzny, często pod kątem. Widoki detali to z kolei powiększone fragmenty rysunku, które skupiają się na skomplikowanych lub małych elementach, zapewniając ich czytelność i precyzyjne przedstawienie.
Alfabet inżyniera: najważniejsze symbole i oznaczenia, które musisz znać
Rysunek techniczny posługuje się specyficznym "alfabetem" symboli i oznaczeń, które są niezbędne do poprawnej interpretacji dokumentacji. Opanowanie ich znaczenia jest kluczowe dla każdego inżyniera i wykonawcy pracującego z konstrukcjami stalowymi.
Grubość i rodzaj linii: co mówi cicha mowa kresek?
Rodzaj i grubość linii na rysunku technicznym niosą ze sobą konkretne informacje. Zgodnie z normą PN-EN ISO 128-2: linia ciągła gruba oznacza widoczne krawędzie i kontury w przekroju lub obrys obiektu. Linia ciągła cienka służy do wymiarowania, linii pomocniczych i przedstawiania krawędzi w widoku. Linia kreskowa (przerywana) wskazuje na krawędzie niewidoczne, ukryte w danym rzucie. Istnieją również linie osiowe, linie symetrii czy linie podziału.
Oznaczenia spoin spawalniczych: jak odczytać instrukcje spawania zgodnie z normą?
Oznaczenia spoin spawalniczych, zgodnie z normą PN-EN ISO 2553, są kluczowe dla zapewnienia jakości i wytrzymałości połączeń. Symbole te informują o rodzaju spoiny (np. czołowa, narożna), jej wymiarach (wysokość, szerokość), położeniu względem złącza (strona spawacza, strona odbiorcy) oraz wymaganiach dotyczących metody spawania. Prawidłowa interpretacja tych symboli jest krytyczna dla bezpieczeństwa konstrukcji.
Symbole profili stalowych (IPE, HEA, RHS) i gatunków stali (S235, S355)
Profile hutnicze, takie jak dwuteowniki (np. IPE, HEA, HEM), ceowniki (UPN) czy profile zamknięte (RHS), są oznaczane skrótami, które określają ich kształt i wymiary. Na przykład, IPE 200 oznacza dwuteownik o wysokości około 200 mm. Gatunki stali, takie jak S235JR czy S355J2, informują o minimalnej granicy plastyczności (np. 235 MPa, 355 MPa) oraz innych właściwościach materiału, co jest kluczowe przy doborze odpowiedniej stali do danego zastosowania.
Oznaczenia śrub, otworów i tolerancji wymiarowych
Na rysunkach technicznych śruby są oznaczane za pomocą symboli, które wskazują ich typ, średnicę, długość oraz klasę wytrzymałości. Podobnie otwory mają swoje oznaczenia, określające ich średnicę, głębokość (jeśli są to otwory nieprzelotowe) oraz rozmieszczenie. Tolerancje wymiarowe i geometryczne określają dopuszczalne odchylenia od wartości nominalnych. Są one kluczowe dla zapewnienia prawidłowego pasowania elementów i poprawnego działania całej konstrukcji.
Symbole obróbki powierzchni i zabezpieczeń antykorozyjnych
Oznaczenia dotyczące obróbki powierzchni informują o wymaganej chropowatości czy rodzaju wykończenia. Symbole zabezpieczeń antykorozyjnych wskazują na rodzaj powłoki ochronnej (np. malowanie, cynkowanie), jej grubość, kolor i inne parametry, które są niezbędne dla zapewnienia trwałości i estetyki konstrukcji stalowej w określonych warunkach środowiskowych.
Od ogółu do szczegółu: praktyczny przewodnik czytania rysunku krok po kroku
Analiza rysunku technicznego konstrukcji stalowych powinna przebiegać w sposób metodyczny. Poniższy przewodnik przeprowadzi Cię przez kolejne etapy, od ogólnego zrozumienia dokumentacji po szczegółową analizę poszczególnych elementów.
Krok 1: Zidentyfikuj rodzaj rysunku i przeanalizuj tabelkę tytułową
Pierwszym krokiem jest określenie, z jakim typem rysunku masz do czynienia czy jest to rysunek zestawieniowy, wykonawczy, czy może inny. Następnie dokładnie przeanalizuj tabelkę tytułową. Zwróć uwagę na numer rysunku, jego aktualną rewizję, skalę, datę sporządzenia oraz dane projektanta. Te informacje stanowią podstawowy kontekst dla dalszej analizy.
Krok 2: Zrozum ogólną geometrię na podstawie rzutów głównych
Skup się na głównych rzutach (widokach) rysunku, aby zrozumieć ogólny kształt, wymiary i układ konstrukcji lub elementu. Postaraj się wizualizować obiekt w trzech wymiarach. Zwróć uwagę na osie konstrukcyjne, które często definiują położenie elementów, oraz na ogólne wymiarowanie, które daje pojęcie o gabarytach.
Krok 3: Odszukaj interesujący Cię element i powiąż go z rysunkami wykonawczymi
Jeśli pracujesz z rysunkiem zestawieniowym, zlokalizuj na nim konkretny element lub podzespół, który Cię interesuje. Następnie poszukaj odnośników lub numerów wskazujących na powiązane rysunki wykonawcze (warsztatowe). Te rysunki dostarczą szczegółowych informacji potrzebnych do produkcji lub montażu tego konkretnego elementu.
Krok 4: Skoncentruj się na detalach: wymiarowanie, spoiny, otwory i materiał
Na rysunkach wykonawczych przejdź do szczegółowej analizy. Dokładnie sprawdź wszystkie wymiary, upewniając się, że rozumiesz ich znaczenie. Zwróć szczególną uwagę na oznaczenia spoin spawalniczych, lokalizację i średnice otworów. Zidentyfikuj gatunek stali i rodzaj użytego profilu. Przeanalizuj wszelkie uwagi techniczne i legendy, które mogą zawierać dodatkowe, ważne informacje.
Krok 5: Weryfikuj informacje, porównując rysunki zestawieniowe z wykonawczymi
Kluczowe dla uniknięcia błędów jest porównywanie informacji pochodzących z różnych rysunków. Porównaj wymiary i ogólne założenia z rysunku zestawieniowego z danymi na rysunkach wykonawczych. Szukaj wszelkich niespójności, brakujących informacji lub potencjalnych konfliktów. Taka weryfikacja pozwala na wychwycenie błędów na wczesnym etapie.
Najczęstsze pułapki i błędy przy czytaniu rysunków: jak ich unikać?
Nawet doświadczeni specjaliści mogą popełniać błędy przy interpretacji rysunków technicznych. Świadomość najczęstszych pułapek i stosowanie odpowiednich strategii pozwala na uniknięcie kosztownych pomyłek.
Mylenie skali lub praca na nieaktualnej rewizji dokumentacji
To jedne z najbardziej fundamentalnych i jednocześnie najczęściej popełnianych błędów. Zawsze upewnij się, że pracujesz z rysunkiem o poprawnej skali i co ważniejsze, że jest to najnowsza dostępna rewizja dokumentacji. Praca na nieaktualnym rysunku może skutkować wykonaniem elementów niezgodnych z projektem, co generuje ogromne koszty i opóźnienia.
Błędna interpretacja symboli spoin i ich wymiarów
Symbole spoin spawalniczych, choć znormalizowane, bywają złożone. Ich błędna interpretacja może prowadzić do nieprawidłowego wykonania połączeń, co bezpośrednio wpływa na wytrzymałość i bezpieczeństwo całej konstrukcji. Dogłębne zrozumienie normy PN-EN ISO 2553 i regularne ćwiczenie odczytywania tych symboli jest niezbędne.
Ignorowanie tolerancji wykonawczych i pasowań
Tolerancje wymiarowe i geometryczne określają dopuszczalne odchylenia od wymiarów nominalnych. Ignorowanie ich może prowadzić do sytuacji, w której elementy, choć wykonane "na oko" poprawnie, nie będą do siebie pasować lub konstrukcja nie będzie spełniać wymagań funkcjonalnych i bezpieczeństwa. Są one kluczowe dla precyzyjnego montażu i działania konstrukcji.
Problem z wizualizacją przestrzenną: jak go przezwyciężyć?
Wielu początkujących ma trudności z wizualizacją trójwymiarowego obiektu na podstawie dwuwymiarowych rzutów. Jest to jednak umiejętność, którą można rozwijać. Pomocne może być budowanie modeli myślowych, korzystanie z oprogramowania CAD do oglądania modeli 3D, a także analiza rzeczywistych konstrukcji i porównywanie ich z rysunkami.
Od teorii do praktyki: jak skutecznie rozwijać swoje umiejętności?
Nauka czytania rysunków technicznych to proces ciągły. Połączenie teorii z praktyką i wykorzystanie nowoczesnych narzędzi znacząco przyspiesza rozwój kompetencji w tej dziedzinie.
Analiza rzeczywistych projektów: gdzie szukać materiałów do nauki?
Najlepszym sposobem na naukę jest praktyka. Aktywnie poszukuj i analizuj rzeczywiste rysunki techniczne zrealizowanych projektów budownictwa stalowego. Materiały te można znaleźć w archiwach projektowych (jeśli masz dostęp), na specjalistycznych kursach, branżowych forach internetowych, a także w literaturze technicznej. Im więcej rysunków przeanalizujesz, tym lepiej zrozumiesz ich logikę.
Przeczytaj również: Zbrojenie wieńca w narożniku: jak zrobić to poprawnie?
Narzędzia cyfrowe (CAD, BIM viewers) jako wsparcie w nauce czytania rysunków
Nowoczesne narzędzia cyfrowe, takie jak oprogramowanie CAD (Computer-Aided Design) czy przeglądarki modeli BIM (Building Information Modeling), stanowią nieocenione wsparcie w nauce. Pozwalają one na trójwymiarową wizualizację modeli, obracanie ich w przestrzeni, wyciąganie przekrojów i łatwiejsze zrozumienie skomplikowanych geometrii. Interakcja z modelem 3D znacząco ułatwia przełożenie dwuwymiarowych rzutów na rzeczywisty obiekt.
