Rysunek techniczny konstrukcji stalowych: Przewodnik krok po kroku
21 listopada 2025
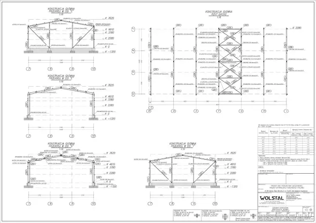
Poznaj praktyczny przewodnik od zera do bohatera w czytaniu rysunków technicznych konstrukcji stalowych. Dowiedz się, jak odczytywać arkusze i symbole.
Jestem Jędrzej Olszewski, doświadczony analityk w dziedzinie budownictwa, z ponad dziesięcioletnim stażem w branży. Moje zainteresowania koncentrują się na analizie trendów rynkowych oraz innowacji technologicznych, które kształtują przyszłość budownictwa. Posiadam głęboką wiedzę na temat materiałów budowlanych, zrównoważonego rozwoju oraz efektywności energetycznej, co pozwala mi na dostarczanie rzetelnych i aktualnych informacji. Moim celem jest uproszczenie skomplikowanych danych oraz dostarczanie obiektywnej analizy, która pomoże czytelnikom w podejmowaniu świadomych decyzji. Zobowiązuję się do zapewnienia najwyższej jakości treści, które są nie tylko informacyjne, ale także angażujące i pomocne w zrozumieniu dynamicznie zmieniającego się świata budownictwa.
21 listopada 2025
Poznaj praktyczny przewodnik od zera do bohatera w czytaniu rysunków technicznych konstrukcji stalowych. Dowiedz się, jak odczytywać arkusze i symbole.
21 listopada 2025
Konglomerat łazienkowy: zalety, wady i ceny; porównanie z granitem i spiekiem. Dowiedz się, jak skutecznie montować i pielęgnować na lata.
20 listopada 2025
Dowiedz się, ile kosztuje fundament pod dom - czynniki wpływające, różnice między ławami a płytą fundamentową, i ukryte koszty. Sprawdź kosztorys.
19 listopada 2025
Poznaj koszt wylewek za m² (cementowa, anhydrytowa, samopoziomująca) i kluczowe czynniki cenowe. Sprawdź praktyczne porady przy porównywaniu ofert.
19 listopada 2025
Dowiedz się, jak samodzielnie zbudować półki z karton-gipsu: od planowania po malowanie i LED. Praktyczny poradnik krok po kroku.
18 listopada 2025
Ile kosztuje ocieplenie styropianem w 2026 roku? Poznaj widełki cen, podział na materiały i robociznę oraz przykładową kalkulację.
18 listopada 2025
Ile kosztuje kubik drewna konstrukcyjnego w 2026 roku? Sprawdź aktualne ceny, czynniki wpływające i praktyczne porady zakupowe.
17 listopada 2025
Dowiedz się, jak wykonać fundamenty domu krok po kroku: od badań gruntu po izolacje, koszty i najczęstsze błędy. Sprawdź nasz praktyczny poradnik.
16 listopada 2025
Poznaj praktyczny poradnik krok po kroku: samodzielnie wykonaj wylewkę, wybierz rodzaj, przygotuj podłoże i zadbaj o pielęgnację. Sprawdź przewodnik.

24 grudnia 2025

23 grudnia 2025

22 grudnia 2025

22 grudnia 2025

25 grudnia 2025

24 grudnia 2025

23 grudnia 2025

23 grudnia 2025